Casa La Guadalupe

Vivienda
2023

José María Zarroca
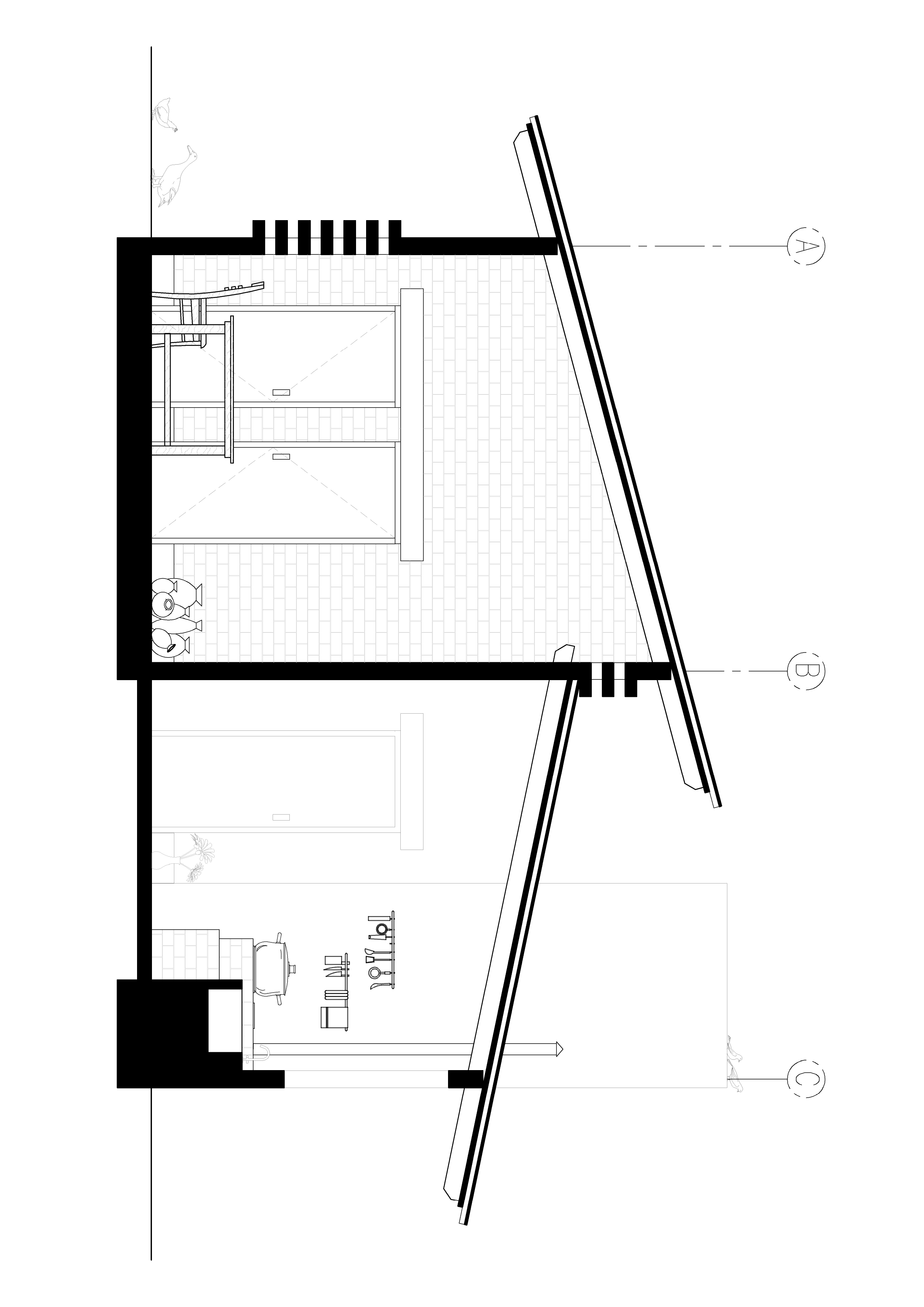
Se propone un prototipo de vivienda mínima bajo una lógica progresiva de construcción, diseñado para ser replicable no solo en La Guadalupe, sino en otros territorios rurales con condiciones de vida similares en la región. Su sistema estructural permite adaptarse a una amplia variedad de materiales, garantizando seguridad y funcionalidad independientemente de los recursos disponibles.La estrategia constructiva incorpora una paleta de materiales disponibles en la zona, considerando distintos rangos de precio, conocimientos constructivos populares y accesibilidad al agua, de modo que los usuarios puedan seleccionar los materiales según sus necesidades y presupuesto sin comprometer la estabilidad estructural.

Casa La Guadalupe es un elemento fundamental del proyecto de expansión urbana en La Guadalupe, el cual considera pautas para el crecimiento autónomo de la comunidad.


La Guadalupe es una comunidad rural en la provincia de Oaxaca, México. Durante el Taller de Incidencia Social, se visitó la localidad con el apoyo del Instituto Tonantzin-Tlalli, organización dedicada a promover ecotecnias en comunidades marginadas. Se dialogó con los habitantes para comprender sus necesidades y estilo de vida particulares.
Casa La Guadalupe

Vivienda
2023
José María Zarroca
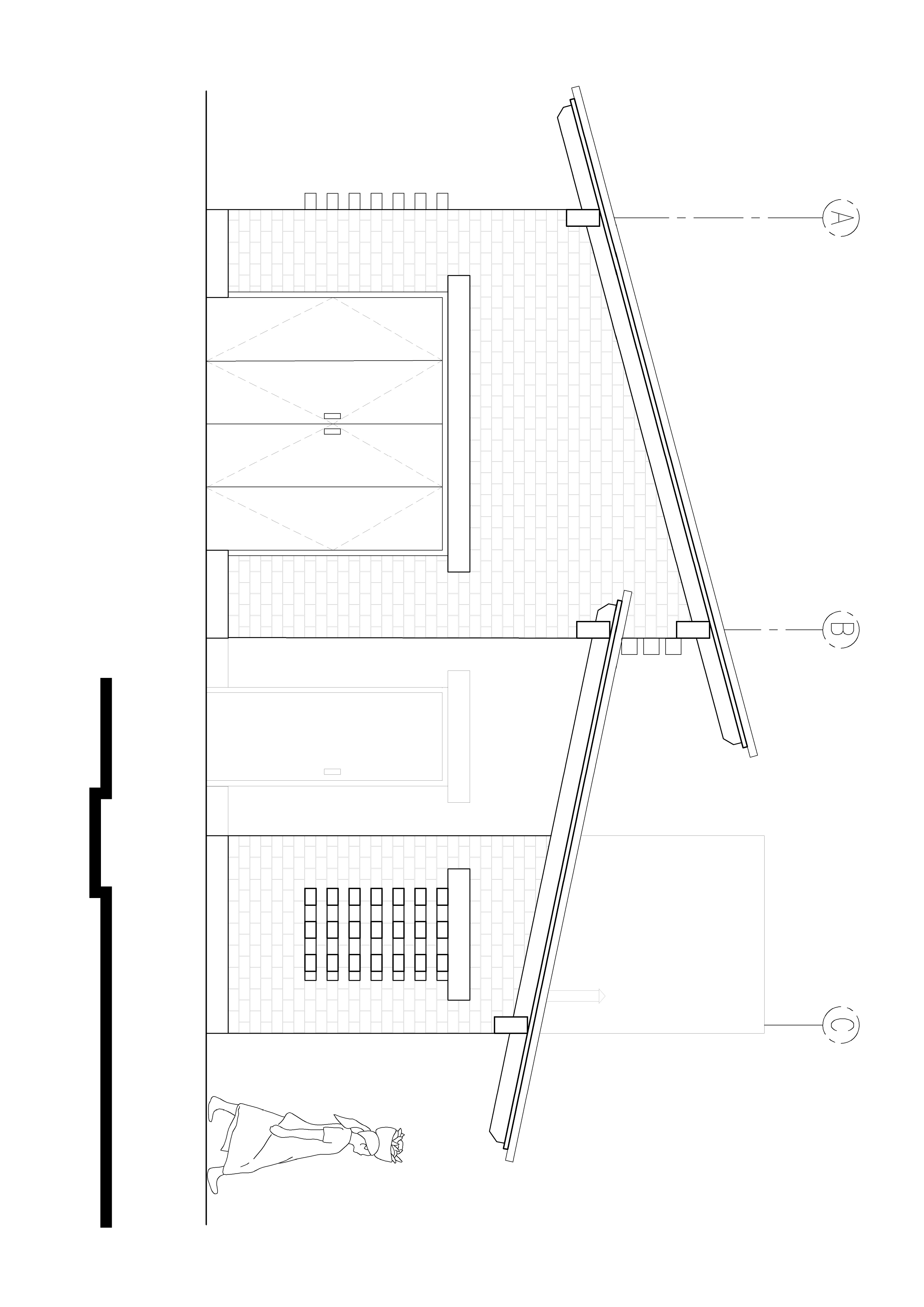
Se propone un prototipo de vivienda mínima bajo una lógica progresiva de construcción, diseñado para ser replicable no solo en La Guadalupe, sino en otros territorios rurales con condiciones de vida similares en la región. Su sistema estructural permite adaptarse a una amplia variedad de materiales, garantizando seguridad y funcionalidad independientemente de los recursos disponibles.La estrategia constructiva incorpora una paleta de materiales disponibles en la zona, considerando distintos rangos de precio, conocimientos constructivos populares y accesibilidad al agua, de modo que los usuarios puedan seleccionar los materiales según sus necesidades y presupuesto sin comprometer la estabilidad estructural.

Casa La Guadalupe es un elemento fundamental del proyecto de expansión urbana en La Guadalupe, el cual considera pautas para el crecimiento autónomo de la comunidad.


La Guadalupe es una comunidad rural en la provincia de Oaxaca, México. Durante el Taller de Incidencia Social, se visitó la localidad con el apoyo del Instituto Tonantzin-Tlalli, organización dedicada a promover ecotecnias en comunidades marginadas. Se dialogó con los habitantes para comprender sus necesidades y estilo de vida particulares.