Fábrica de Raíces

Retail
2025

Zarah González
José María Zarroca
El proyecto surge de un proceso de investigación territorial y social que reconoció el potencial y la necesidad de detonar un proceso de restauración del paisaje como medio para rearticular los vínculos fragmentados entre los habitantes de la colonia Hipódromo. Frente al deterioro ecológico y la pérdida de sentido colectivo en torno al Parque México, se propuso un modelo de intervención que concibe el parque como un sistema activo, capaz de generar nuevas relaciones entre comunidad, espacio público y naturaleza. La restauración, en este sentido, se entiende no sólo como una acción ambiental, sino como una estrategia cultural y social orientada a restablecer la vitalidad del parque y su papel como corazón del barrio.

Dentro de esta lógica, la Fábrica de raíces actúa como infraestructura base para hacer posible el proceso de restauración. Su diseño responde a la necesidad de producir, gestionar y mantener los sistemas ecológicos del parque, al tiempo que se consolida como un nuevo punto de encuentro para la comunidad. El proyecto se compone de un volumen sobrio de concreto que alberga los servicios técnicos y operativos, vinculado a una estructura de madera permeable y multifuncional, expuesta a los elementos. Sin muros ni canceles, amplifica los olores, colores y sonidos del Parque México.

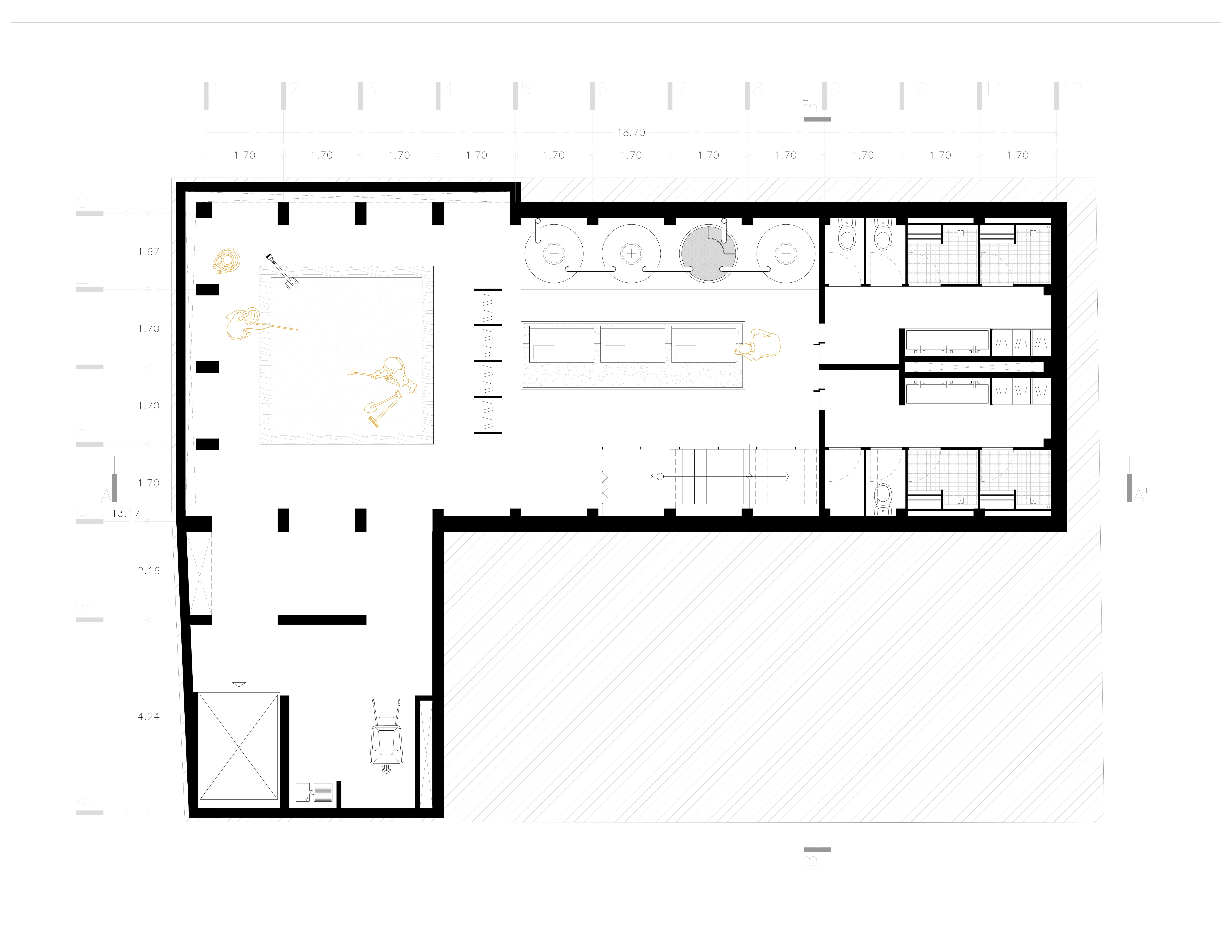
En la planta baja, un espacio libre y flexible se extiende naturalmente hacia el parque, acogiendo actividades comunitarias, educativas y culturales junto a un jardín polinizador y un pequeño humedal de pulimento de agua. El segundo nivel reúne una tienda de té y una tienda a granel de material vegetal, promoviendo el consumo responsable y el intercambio de conocimientos en torno al paisaje. En el tercer nivel se ubica un vivero dedicado a la producción de especies nativas y al fortalecimiento de los procesos de revegetación del parque. Finalmente, el subsuelo concentra las funciones de soporte ecológico: una planta de tratamiento de agua, composteros, áreas de producción de suelo y espacios de descanso y vestidores para los jardineros de la colonia. En conjunto, la Fábrica se concibe como una infraestructura viva y sensible, capaz de sostener el equilibrio entre los procesos naturales y las dinámicas sociales del Parque México.


Durante mi intercambio en la Pontificia Universidad Católica de Chile, tuve oportunidad de profundizar en la solución estructural de edificios de madera como parte del curso "Materia y Arquitectura en Madera".
Fábrica de Raíces

Retail
2025
Zarah González
José María Zarroca
El proyecto surge de un proceso de investigación territorial y social que reconoció el potencial y la necesidad de detonar un proceso de restauración del paisaje como medio para rearticular los vínculos fragmentados entre los habitantes de la colonia Hipódromo. Frente al deterioro ecológico y la pérdida de sentido colectivo en torno al Parque México, se propuso un modelo de intervención que concibe el parque como un sistema activo, capaz de generar nuevas relaciones entre comunidad, espacio público y naturaleza. La restauración, en este sentido, se entiende no sólo como una acción ambiental, sino como una estrategia cultural y social orientada a restablecer la vitalidad del parque y su papel como corazón del barrio.

Dentro de esta lógica, la Fábrica de raíces actúa como infraestructura base para hacer posible el proceso de restauración. Su diseño responde a la necesidad de producir, gestionar y mantener los sistemas ecológicos del parque, al tiempo que se consolida como un nuevo punto de encuentro para la comunidad. El proyecto se compone de un volumen sobrio de concreto que alberga los servicios técnicos y operativos, vinculado a una estructura de madera permeable y multifuncional, expuesta a los elementos. Sin muros ni canceles, amplifica los olores, colores y sonidos del Parque México.

En la planta baja, un espacio libre y flexible se extiende naturalmente hacia el parque, acogiendo actividades comunitarias, educativas y culturales junto a un jardín polinizador y un pequeño humedal de pulimento de agua. El segundo nivel reúne una tienda de té y una tienda a granel de material vegetal, promoviendo el consumo responsable y el intercambio de conocimientos en torno al paisaje. En el tercer nivel se ubica un vivero dedicado a la producción de especies nativas y al fortalecimiento de los procesos de revegetación del parque. Finalmente, el subsuelo concentra las funciones de soporte ecológico: una planta de tratamiento de agua, composteros, áreas de producción de suelo y espacios de descanso y vestidores para los jardineros de la colonia. En conjunto, la Fábrica se concibe como una infraestructura viva y sensible, capaz de sostener el equilibrio entre los procesos naturales y las dinámicas sociales del Parque México.


Durante mi intercambio en la Pontificia Universidad Católica de Chile, tuve oportunidad de profundizar en la solución estructural de edificios de madera como parte del curso "Materia y Arquitectura en Madera".