Guadalupe 338

Vivienda
2023

Zarah González
Carola Pérez
Nelly Rodríguez
José María Zarroca
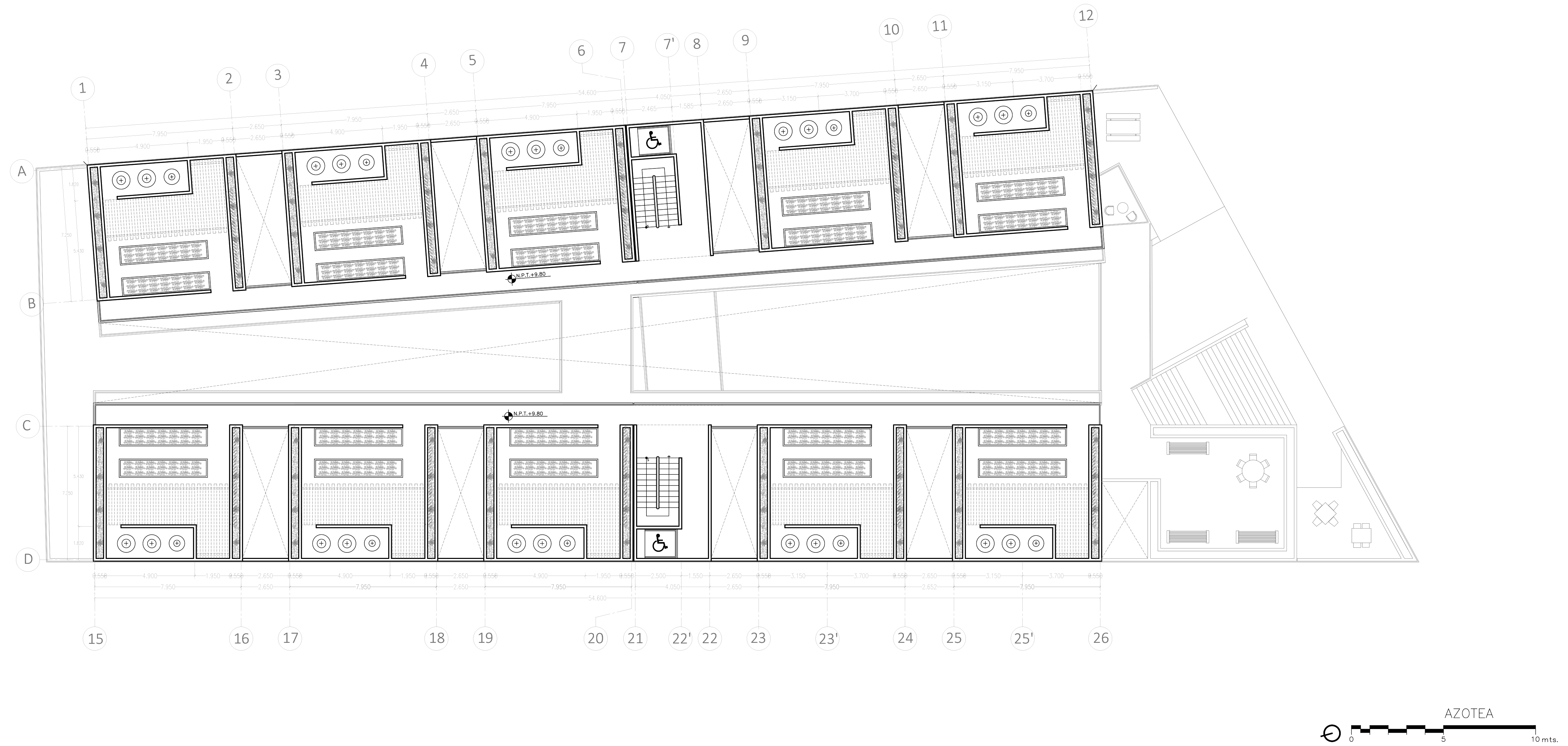
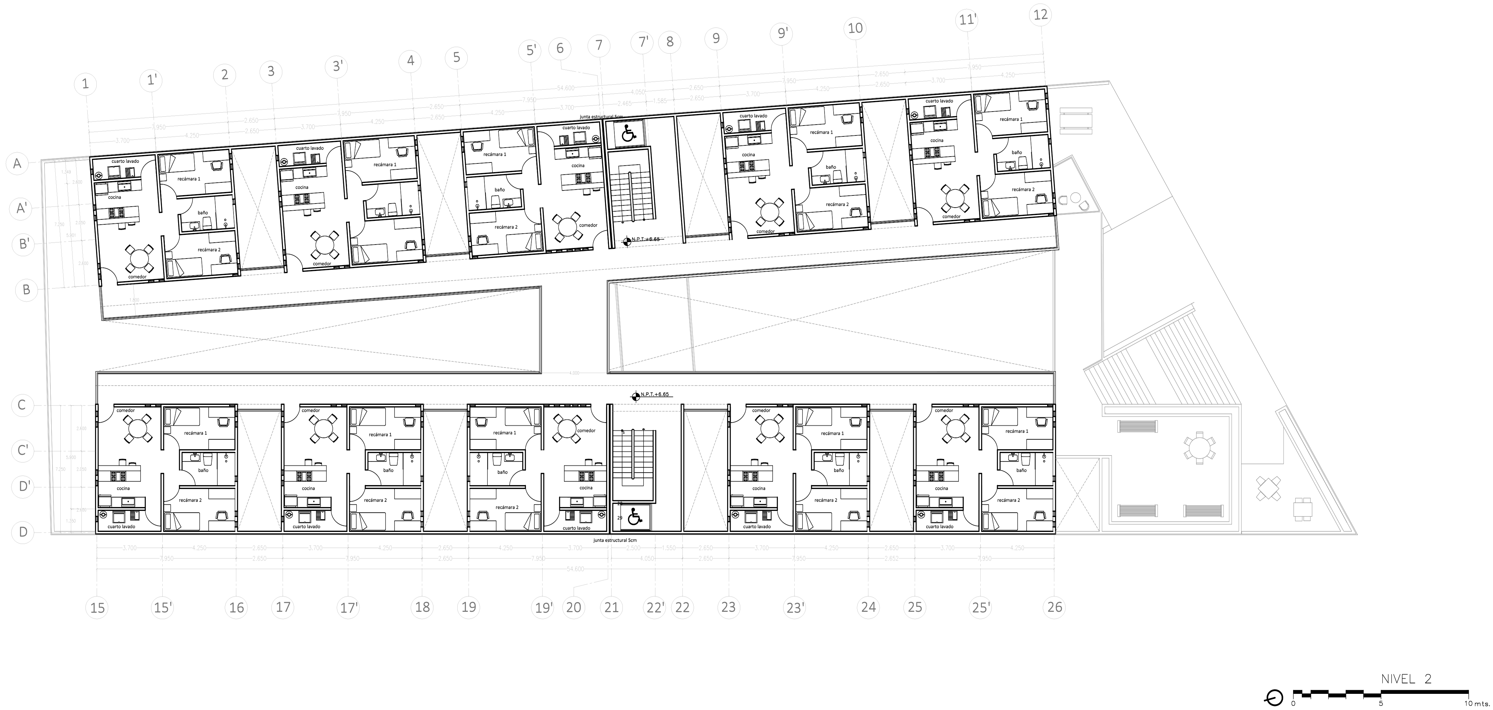
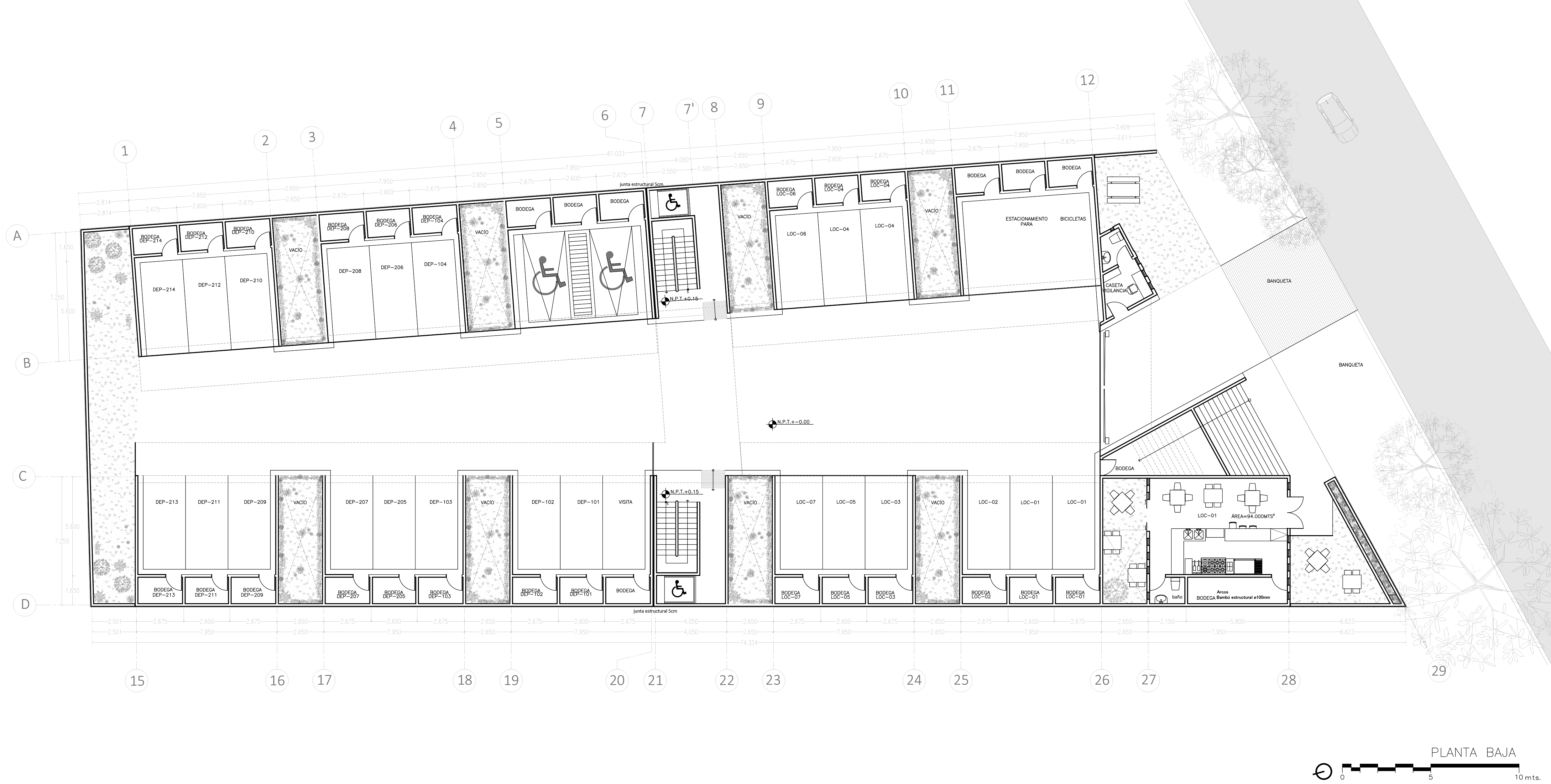
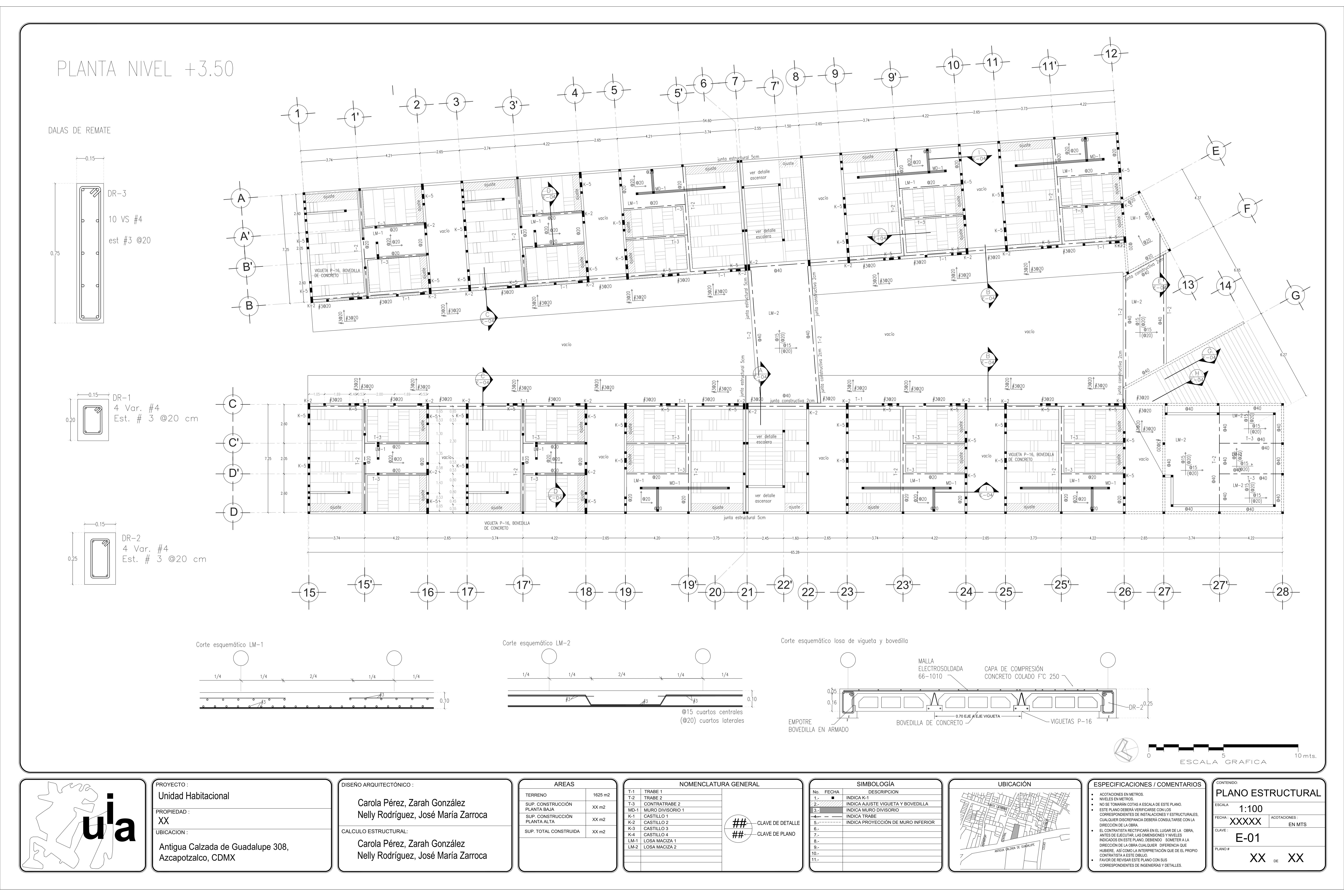
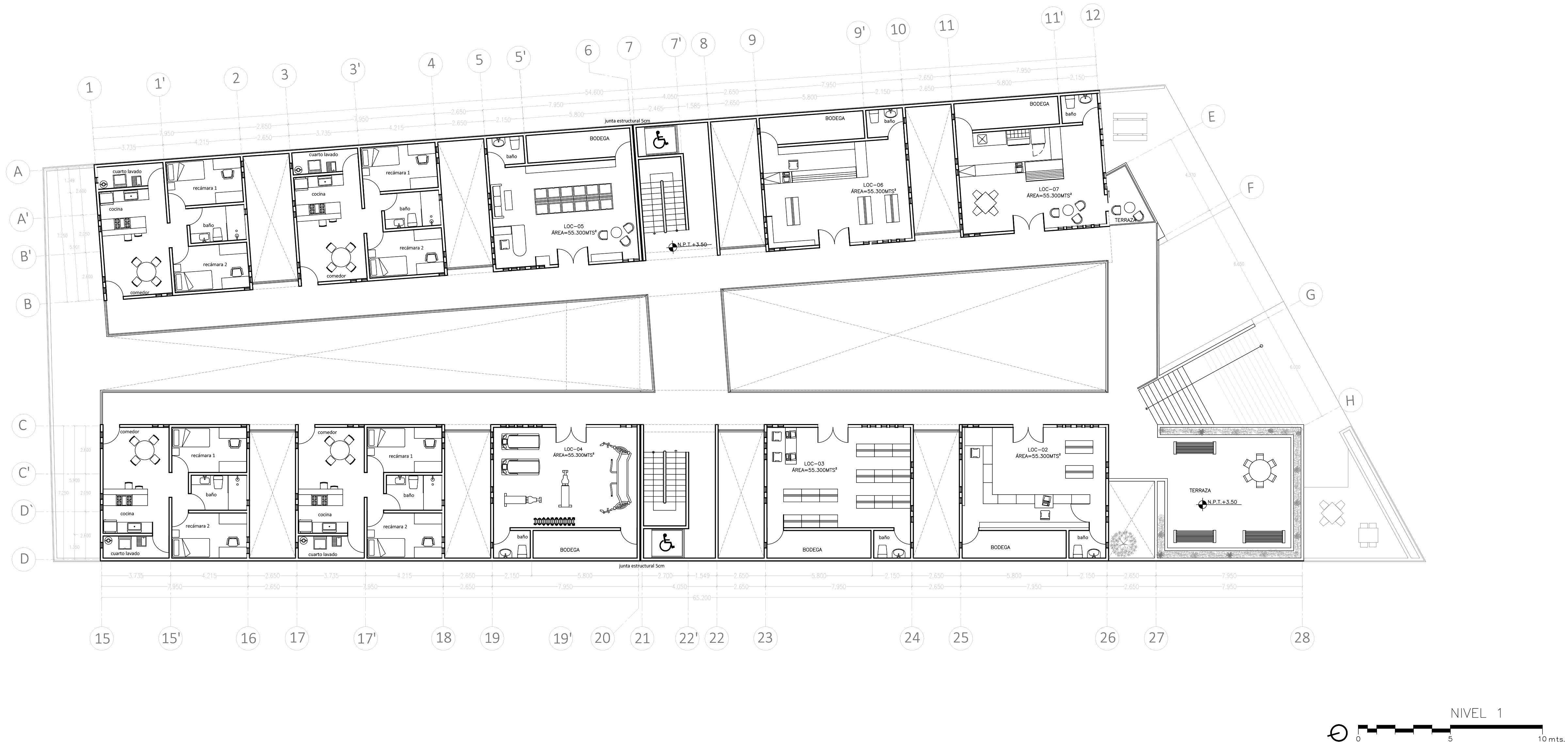
El proyecto, ubicado frente a la Universidad Autónoma de Azcapotzalco, consiste en un edificio de 1,300 m² destinado a vivienda social para estudiantes, personal académico y población retirada. Desarrollado en mampostería y concreto, el complejo alberga 14 unidades de 56 m², cada una con dos habitaciones y un baño, distribuidas en tres niveles. La planta baja se destina a estacionamiento, mientras que el primer nivel combina viviendas y seis locales comerciales —gimnasio, lavandería, papelería, tienda de conveniencia y cafeterías— que financian la viabilidad económica del proyecto. La azotea incorpora jardines productivos y huertos urbanos compartidos, promoviendo sostenibilidad y cohesión comunitaria, complementada con puentes y barandales de acero, escaleras y módulos de ascensor para circulación eficiente.
Guadalupe 338

Vivienda
2023
Zarah González
Carola Pérez
Nelly Rodríguez
José María Zarroca
El proyecto, ubicado frente a la Universidad Autónoma de Azcapotzalco, consiste en un edificio de 1,300 m² destinado a vivienda social para estudiantes, personal académico y población retirada. Desarrollado en mampostería y concreto, el complejo alberga 14 unidades de 56 m², cada una con dos habitaciones y un baño, distribuidas en tres niveles. La planta baja se destina a estacionamiento, mientras que el primer nivel combina viviendas y seis locales comerciales —gimnasio, lavandería, papelería, tienda de conveniencia y cafeterías— que financian la viabilidad económica del proyecto. La azotea incorpora jardines productivos y huertos urbanos compartidos, promoviendo sostenibilidad y cohesión comunitaria, complementada con puentes y barandales de acero, escaleras y módulos de ascensor para circulación eficiente.